
Terrenos urbanizados no bairro São Giácomo, prontos para construir e em desenvolvimento.
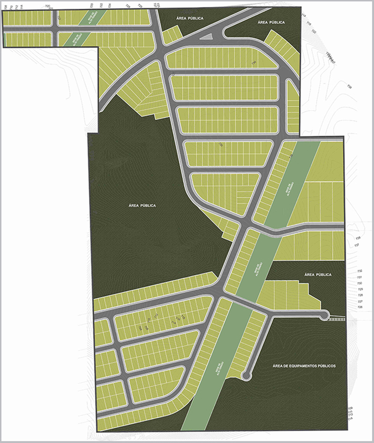
O Reserva do Vale é um loteamento planejado para quem busca uma nova forma de viver em Caxias do Sul. São 397 lotes, com infraestrutura completa, salão comunitário, praça recreativa, trilha ecológica, quadras esportivas (vôlei de areia, futebol 7 e poliesportivas), ele é perfeito para quem busca qualidade de vida em uma área cercada de muita natureza.

Terraplanagem100%
Drenagem Pluvial100%
Esgoto Cloacal100%
Estação de bombeamento de esgoto100%
Pavimentação100%
Área de lazer100%
Energia Elétrica100%
Localização
Rua Altamiro Guilherme Lemos - São Giácomo, Caxias do Sul - RS
CRECI - 39038(54) 9 8156-4545
Olá, tudo bem?! Como posso te ajudar?
